03-6271-9991
営業時間:09:30 - 18:30 定休日:日・祝日 (土曜日はアポイントがある場合のみ)
営業時間:09:30 - 18:30 定休日:日・祝日 (土曜日はアポイントがある場合のみ)
ディームス横濱青木町 405
Key replacement fee from 33,000 yen (tax included)/Additional 1 month Deposit for keeping pet
THE BUILDING
| 所在地 | 神奈川県横浜市神奈川区青木町4-4 |
|---|---|
| 最寄り駅 |
京急本線 神奈川駅 2分 JR東海道本線 横浜駅 9分 JR京浜東北線 東神奈川駅 15分 |
| 築年月 | 2020年5月 |
| 構造 | 鉄筋コンクリート(RC造) / 10stories, 4階 |
| 総戸数 |
THE PROPERTY
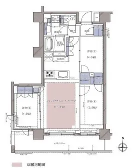
| 専有面積 | 61.55m² |
|---|---|
| 間取り | 3DK,3LDK +1浴室 |
| 賃料 (管理費) | 268,000円(15,000円) |
| 敷金 /礼金 | 2ヶ月/1ヶ月 |
| 仲介手数料 | 1ヶ月 +税 |
| 保証会社 | 要加入 |
| 入居可能日 | 2026年5月下旬 |
| 契約期間 | 定期借家契約 2年間 |