03-6271-9991
営業時間:09:30 - 18:30 定休日:日・祝日 (土曜日はアポイントがある場合のみ)
営業時間:09:30 - 18:30 定休日:日・祝日 (土曜日はアポイントがある場合のみ)
ドゥーエ横浜駅前 313
Key replacement fee:From 16,500 yen(tax included)
THE BUILDING
| 所在地 | 神奈川県横浜市神奈川区金港町8-1 |
|---|---|
| 最寄り駅 |
JR京浜東北線 横浜駅 5分 JR根岸線 横浜駅 5分 京急本線 神奈川駅 3分 |
| 築年月 | 2003年3月 |
| 構造 | 鉄筋コンクリート(RC造) / 21stories, 3階 |
| 総戸数 |
THE PROPERTY
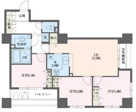
| 専有面積 | 78.88m² |
|---|---|
| 間取り | 3DK,3LDK +1浴室 |
| 賃料 (管理費) | 320,000円(10,000円) |
| 敷金 /礼金 | 1ヶ月/1ヶ月 |
| 仲介手数料 | 1ヶ月 +税 |
| 保証会社 | 要加入 |
| 入居可能日 | 相談 |
| 契約期間 | 2年間 |
| 更新料 | 新賃料1ヶ月 |