03-6271-9991
営業時間:09:30 - 18:30 定休日:日・祝日 (土曜日はアポイントがある場合のみ)
営業時間:09:30 - 18:30 定休日:日・祝日 (土曜日はアポイントがある場合のみ)
御殿山テラス 802
THE BUILDING
| 所在地 | 東京都品川区北品川4-2-1 |
|---|---|
| 最寄り駅 |
京急本線 北品川駅 7分 JR山手線 品川駅 12分 |
| 築年月 | 1999年 |
| 構造 | 鉄骨鉄筋コンクリート(SRC造) / 11stories, 8階 |
| 総戸数 |
THE PROPERTY
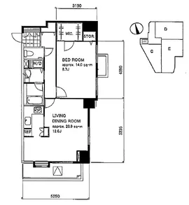
| 専有面積 | 63.41m² |
|---|---|
| 間取り | 1DK,1LDK +1浴室 |
| 賃料 (管理費) | 287,000円() |
| 敷金 /礼金 | 3ヶ月/なし |
| 仲介手数料 | 1ヶ月 +税 |
| 保証会社 | 要加入 |
| 入居可能日 | 2026年4月下旬 |
| 契約期間 | 定期借家契約 2年間 |