+81-3-6271-9991
Shop Hours:09:30 - 18:30 Holiday:Sunday, National Holiday, (Saturday appoint only)
Shop Hours:09:30 - 18:30 Holiday:Sunday, National Holiday, (Saturday appoint only)
MFPR Meguro Tower 202
[Other Fees] Bicycle Registration fee: from 4,400 yen(tax included)/ Key replacement fee; from 22,000 yen(tax included) /Additional 1 month Deposit for keeping pet /One bicycle space per unit
THE BUILDING
| Address | 1-24-9 Meguro, Meguro ku, Tokyo |
|---|---|
| Nearest Station |
Yamanote Line Meguro station 7minutes Meguro Line Meguro station 8minutes |
| Year Built | Feb, 2008 |
| Structure | RC / 25stories, 2nd floor |
| Total Units |
THE PROPERTY
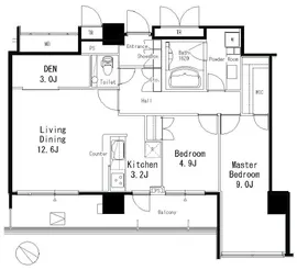
| Floor Area | 77.64m² |
|---|---|
| Floor Plan | 2 Bedrooms +1Bath +1DEN |
| Rent (Management Fee) | 534,000yen(15,000yen) |
| Security Deposit /Key Money | 2months/None |
| Agent fee | 1month + Tax |
| Fire insurance | Required |
| Move-in Date | Now |
| Contract Terms | 2 years |
| Renewal Fee | 1month of the new rent |