+81-3-6271-9991
Shop Hours:09:30 - 18:30 Holiday:Sunday, National Holiday, (Saturday appoint only)
Shop Hours:09:30 - 18:30 Holiday:Sunday, National Holiday, (Saturday appoint only)
Gran Casa MinamiAoyama 402
Key replacement fee: from 16,500 yen (tax included)/Additional one month Deposit for keeping pet
THE BUILDING
| Address | 4-17-33 Minamiaoyama, Minato ku, Tokyo |
|---|---|
| Nearest Station |
Hanzomon Line Omote-sando station 9minutes Ginza Line Omote-sando station 9minutes Chiyoda Line Nogizaka station 9minutes |
| Year Built | Oct, 2006 |
| Structure | RC / 5stories, 4th floor |
| Total Units |
THE PROPERTY
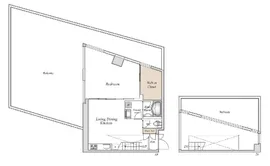
| Floor Area | 86.54m² |
|---|---|
| Floor Plan | 1 Bedroom +1Bath |
| Rent (Management Fee) | 800,000yen() |
| Security Deposit /Key Money | 1month/None |
| Agent fee | 1month + Tax |
| Fire insurance | Required |
| Move-in Date | Now |
| Contract Terms | 2 years |
| Renewal Fee | 1month of the new rent |