+81-3-6271-9991
Shop Hours:09:30 - 18:30 Holiday:Sunday, National Holiday, (Saturday appoint only)
Shop Hours:09:30 - 18:30 Holiday:Sunday, National Holiday, (Saturday appoint only)
Ishikawacho House(5chome) vacancy
THE BUILDING
| Address | 5 Ishikawacho, Yokohama shi naka ku, Kanagawa |
|---|---|
| Nearest Station |
Negishi Line Ishikawacho station 7minutes |
| Year Built | Mar, 2022 |
| Structure | Wooden / 3stories, to 3rd floor |
| Total Units |
THE PROPERTY
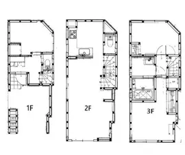
| Floor Area | 92.82m² |
|---|---|
| Floor Plan | 3 Bedrooms +1Bath |
| Rent (Management Fee) | 199,000yen(39,000yen) |
| Security Deposit /Key Money | 1month/1month |
| Agent fee | 1month + Tax |
| Fire insurance | Required |
| Move-in Date | To be confirmed |
| Contract Terms | 2 years |
| Renewal Fee | 1.5months of the new rent |