+81-3-6271-9991
Shop Hours:09:30 - 18:30 Holiday:Sunday, National Holiday, (Saturday appoint only)
Shop Hours:09:30 - 18:30 Holiday:Sunday, National Holiday, (Saturday appoint only)
Dresser Kohoku Center-kita 701
THE BUILDING
| Address | 1-3 Nakagawachuo, Yokohama shi tsuzuki ku, Kanagawa |
|---|---|
| Nearest Station |
Blueline Center-kita station 2minutes Greenline Center-kita station 2minutes |
| Year Built | Mar, 2026 |
| Structure | RC / 9stories, 7th floor |
| Total Units |
THE PROPERTY
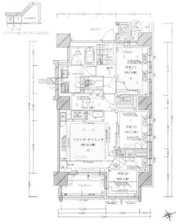
| Floor Area | 75.41m² |
|---|---|
| Floor Plan | 3 Bedrooms +1Bath |
| Rent (Management Fee) | 260,000yen(10,000yen) |
| Security Deposit /Key Money | 2months/1month |
| Agent fee | 1month + Tax |
| Fire insurance | Required |
| Move-in Date | Late Apr 2026 |
| Contract Terms | Fixed-term lease 2 years |