+81-3-6271-9991
Shop Hours:09:30 - 18:30 Holiday:Sunday, National Holiday, (Saturday appoint only)
Shop Hours:09:30 - 18:30 Holiday:Sunday, National Holiday, (Saturday appoint only)
Comforia Nakakasai 601
THE BUILDING
| Address | 5-20-5 Nakakasai, Edogawa ku, Tokyo |
|---|---|
| Nearest Station |
Tokyometrotozai Line Kasai station 4minutes |
| Year Built | Jan, 2026 |
| Structure | RC / 7stories, 6th floor |
| Total Units |
THE PROPERTY
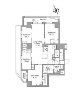
| Floor Area | 71.86m² |
|---|---|
| Floor Plan | 4 Bedrooms +1Bath |
| Rent (Management Fee) | 295,000yen(20,000yen) |
| Security Deposit /Key Money | 1month/None |
| Agent fee | 1month + Tax |
| Fire insurance | Required |
| Move-in Date | Now |
| Contract Terms | 2 years |
| Renewal Fee | 1month of the new rent |