+81-3-6271-9991
Shop Hours:09:30 - 18:30 Holiday:Sunday, National Holiday, (Saturday appoint only)
Shop Hours:09:30 - 18:30 Holiday:Sunday, National Holiday, (Saturday appoint only)
Park Cube Atagoyama Tower 2805
Key replacement fee: from 16,500 yen (tax included)/Additional 1 month Deposit for keeping pet
THE BUILDING
| Address | 3-17-7 Nishishimbashi, Minato ku, Tokyo |
|---|---|
| Nearest Station |
Hibiya Line Kamiyacho station 7minutes Hibiya Line Toranomon hills station 8minutes |
| Year Built | Feb, 2007 |
| Structure | RC / 31stories, 28th floor |
| Total Units |
THE PROPERTY
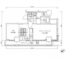
| Floor Area | 51.15m² |
|---|---|
| Floor Plan | 1 Bedroom +1Bath |
| Rent (Management Fee) | 350,000yen() |
| Security Deposit /Key Money | 2months/1month |
| Agent fee | 1month + Tax |
| Fire insurance | Required |
| Move-in Date | Early May 2026 |
| Contract Terms | 2 years |
| Renewal Fee | 1month of the new rent |