+81-3-6271-9991
Shop Hours:09:30 - 18:30 Holiday:Sunday, National Holiday, (Saturday appoint only)
Shop Hours:09:30 - 18:30 Holiday:Sunday, National Holiday, (Saturday appoint only)
Sumida River side Tower 1401
[Other Fees] Trunk /Storage room : from 10,000 yen (+tax) (Please ask for the availability)/Motorcycle parking fee : from 3,000 yen (+tax) / Bicycle parking fee : Free ( outside with in roof ) /from 1,500 yen (+tax) (Inside with in roof) per one Bicycle space (Please ask for the availability)/ Basic charge of Water, Hot water supply and Air conditioning fee : from 7,000 to 15,000 yen/month (+tax) + Usage fee.
THE BUILDING
| Address | 1-28-7 Shinkawa, Chuo ku, Tokyo |
|---|---|
| Nearest Station |
Keiyo Line Hatchobori station 8minutes Hibiya Line Hatchobori station 8minutes Hibiya Line Kayabacho station 9minutes |
| Year Built | Jun, 1990 |
| Structure | RC / 22stories, 14th floor |
| Total Units |
THE PROPERTY
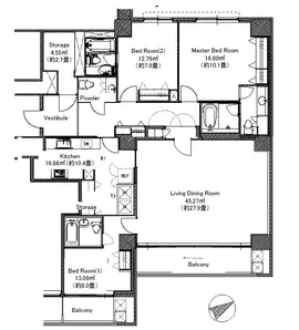
| Floor Area | 158.85m² |
|---|---|
| Floor Plan | 3 Bedrooms +3Bath |
| Rent (Management Fee) | 730,000yen() |
| Security Deposit /Key Money | 3months/None |
| Agent fee | 1month + Tax |
| Fire insurance | Required |
| Move-in Date | Late Apr 2026 (<color rgb='ff0000'>Applicant</color>) |
| Contract Terms | Fixed-term lease 2 years |