+81-3-6271-9991
营业时间:09:30 - 18:30 节假日:Sunday, National Holiday, (Saturday appoint only)
营业时间:09:30 - 18:30 节假日:Sunday, National Holiday, (Saturday appoint only)
Stylio Motosumiyoshi II 409
THE BUILDING
| Address | 3- 木月, 川崎市中原区, Kanagawa |
|---|---|
| 最近的车站 |
东急目黑线 元住吉駅 2分 东急东横线 元住吉駅 7分 |
| 竣工日期 | 2015 |
| 结构 | RC / 6stories, 4階 |
| 单位总数 |
THE PROPERTY
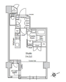
| 面积 | 34.98m² |
|---|---|
| 格局 | Studio +1Bath |
| 租金 (管理费) | 149,000yen(10,000yen) |
| 保证金 /礼金 | None/1months |
| Agent fee | 1months + Tax |
| Fire insurance | Required |
| Move-in Date | |
| Contract Terms | Fixed-term lease 2years |