+81-3-6271-9991
营业时间:09:30 - 18:30 节假日:Sunday, National Holiday, (Saturday appoint only)
营业时间:09:30 - 18:30 节假日:Sunday, National Holiday, (Saturday appoint only)
STYLIO FIT MusashikosugiⅡ 807
Motor bike parking fee: from 8,800 yen/month(inquire availability)
THE BUILDING
| Address | 1-527-1 小杉町, 川崎市中原区, Kanagawa |
|---|---|
| 最近的车站 |
东急东横线 新丸子駅 4分 JR南武线 武蔵小杉駅 6分 |
| 竣工日期 | Mar, 2026 |
| 结构 | RC / 8stories, 8階 |
| 单位总数 | 49 |
THE PROPERTY
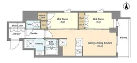
| 面积 | 41.75m² |
|---|---|
| 格局 | 2 Bedrooms +1Bath |
| 租金 (管理费) | 225,000yen(15,000yen) |
| 保证金 /礼金 | 2months/None |
| Agent fee | 1months + Tax |
| Fire insurance | Required |
| Move-in Date | Now |
| Contract Terms | Fixed-term lease 2years |