外観
賃貸
京急本線 平和島駅 3分

177,000円

1DK,1LDK
40.59m²
オートロック オートロック
宅配BOX 宅配BOX
駐輪場 駐輪場
ビルコード 1390067560
物件名 レジディア大森東
部屋番号 1003
物件種目 マンション
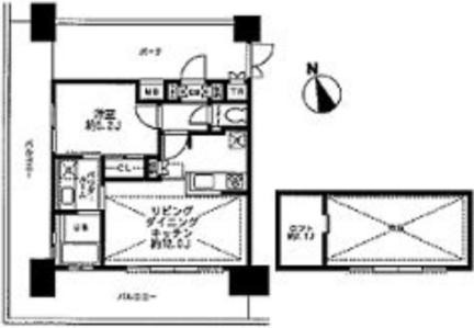
間取り 1DK,1LDK +1浴室
専有面積 40.59m² (436ft²)
賃料 177,000円
最寄り駅 京急本線 平和島駅 3分
京急本線 大森町駅 12分
所在地 東京都大田区大森東1-7-27
敷金 2ヶ月
礼金 1ヶ月
管理費 20,000円
更新料 新賃料1ヶ月
仲介手数料 1ヶ月 +税
保証会社 要加入
入居可能日 2026年4月下旬
契約期間 普通借家契約 2年間
保証会社 大手法人契約は相談
階建 10階
構造 鉄筋コンクリート(RC造)
築年月 2007年8月
特徴 エアコン、オートロック、宅配BOX、ペット不可、バイク置き場、駐輪場、高層階
掲載確認日 2026年02月27日
部屋番号 間取り 専有面積 カテゴリー 賃料 敷金 礼金 所在階
1004 1DK,1LDK 42.43m² 賃貸 186,000円 1ヶ月 1ヶ月 10階
1003 1DK,1LDK 40.59m² 賃貸 177,000円 2ヶ月 1ヶ月 10階

Key replacement fee from 23,100yen/Neighborhood association fee from 100yen per month/24h support fee from 11,000yen

お気に入りに追加

レジディア大森東 1003をシェアする

レジディア大森東 1003を問い合わせる

03-6271-9991
東京都港区麻布十番2-10-3 / 仲介

閲覧履歴&お気に入り

エリアで探す

他の物件

Now Loading...

地域情報

大田区は、東京23区の中でも特に外国人に人気の高いエリアの一つです。区内には羽田空港があり、日本国内だけでなく海外への移動も便利で、国際的に働く方にとって大きなメリットとなっていま...

more information show less

ご利用の流れ

  • サイト上で気になる物件を検索します。

  • 物件へのお問い合わせは、当社までお気軽にご連絡ください。
    お問い合わせいただいた物件の内見をご希望の場合は、お客様のご都合に合わせて日時を調整いたします。