外観
賃貸
申込みあり
JR山手線 代々木駅 4分

475,000円

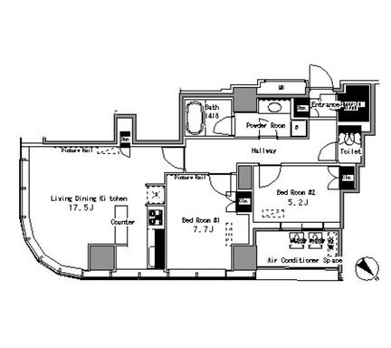
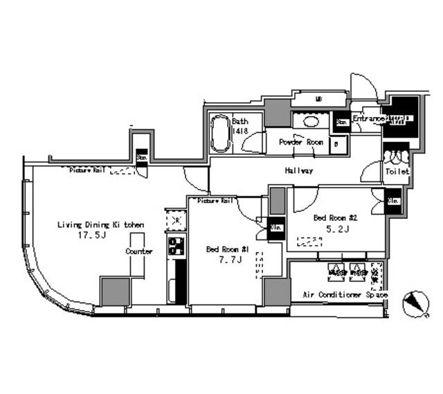
2DK,2LDK
72.64m²
フローリング フローリング
床暖房 床暖房
フロント フロント
オートロック オートロック
宅配BOX 宅配BOX
駐輪場 駐輪場
ビルコード 0094926
物件名 MY TOWER RESIDENCE
部屋番号 2403
物件種目 マンション
間取り 2DK,2LDK +1浴室
専有面積 72.64m² (781ft²)
賃料 475,000円
最寄り駅 JR山手線 代々木駅 4分
小田急線 南新宿駅 4分
都営大江戸線 代々木駅 4分
所在地 東京都渋谷区代々木1-53-1
敷金 1ヶ月
礼金 1.2ヶ月
管理費 15,000円
更新料 新賃料1ヶ月
仲介手数料 1ヶ月 +税
保証会社 要加入
申込状況 申込みあり
入居可能日 2026年5月下旬
契約期間 普通借家契約 2年間
保証会社 大手法人契約は相談
階建 27階
構造 鉄筋コンクリート(RC造)
築年月 2007年2月
駐車場
特徴 フローリング、床暖房、フロント、エアコン、インターネット、オートロック、宅配BOX、駐輪場、バイク置き場、楽器相談、ペット不可、高層階
掲載確認日 2026年04月22日
部屋番号 間取り 専有面積 カテゴリー 賃料 敷金 礼金 所在階
1807 1DK,1LDK 51.7m² 賃貸 323,000円 1ヶ月 1ヶ月 18階
2403 2DK,2LDK 72.64m² 賃貸 475,000円 1ヶ月 1.2ヶ月 24階
1209 2DK,2LDK 73.3m² 賃貸 436,000円 1ヶ月 1ヶ月 12階
1414 1DK,1LDK 54.56m² 賃貸 318,000円 1ヶ月 1ヶ月 14階

Key replacement fee; from 33,000 yen(tax included) /One bicycle space per unit/Bicycle Registration fee:From 1,100 yen

お気に入りに追加

MY TOWER RESIDENCE 2403をシェアする

MY TOWER RESIDENCE 2403を問い合わせる

03-6271-9991
東京都港区麻布十番2-10-3 / 仲介

閲覧履歴&お気に入り

Now Loading...

地域情報

渋谷区は東京の中でも若者文化と国際性が融合するエリアで、日本で働く外国人にとって非常に魅力的な居住地です。中心エリアである「渋谷」は、渋谷駅を核に再開発が進み、駅直結の複合施設「渋...

more information show less

ご利用の流れ

  • サイト上で気になる物件を検索します。

  • 物件へのお問い合わせは、当社までお気軽にご連絡ください。
    お問い合わせいただいた物件の内見をご希望の場合は、お客様のご都合に合わせて日時を調整いたします。