その他
賃貸
東京メトロ日比谷線 中目黒駅 3分

419,000円

2DK,2LDK
63.54m²
フローリング フローリング
ペット相談 ペット相談
駐車場 駐車場
オートロック オートロック
宅配BOX 宅配BOX
駐輪場 駐輪場
ビルコード 0130548
物件名 レジディアタワー中目黒
部屋番号 1703
物件種目 マンション
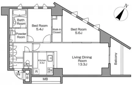
間取り 2DK,2LDK +1浴室
専有面積 63.54m² (683ft²)
賃料 419,000円
最寄り駅 東京メトロ日比谷線 中目黒駅 3分
東急東横線 中目黒駅 3分
所在地 東京都目黒区上目黒2-15-1
敷金 2ヶ月
礼金 1ヶ月
管理費 25,000円
更新料 新賃料1ヶ月
仲介手数料 1ヶ月 +税
保証会社 要加入
入居可能日 相談
契約期間 普通借家契約 2年間
保証会社 大手法人契約は相談
階建 19階
構造 鉄筋コンクリート(RC造)
築年月 2007年4月
駐車場 有 40,000円 (inquire availability)
特徴 インターネット別料金、フローリング、エアコン、オートロック、宅配BOX、バルコニー、ペット相談、小型ペットのみ可、駐車場、バイク置き場、駐輪場、高層階
掲載確認日 2026年03月27日
お気に入りに追加

レジディアタワー中目黒 1703をシェアする

レジディアタワー中目黒 1703を問い合わせる

03-6271-9991
東京都港区麻布十番2-10-3 / 仲介

閲覧履歴&お気に入り

Now Loading...

地域情報

目黒区は、東京の南西部に位置し、落ち着いた住宅街と洗練された都市生活が共存するエリアとして人気があります。中でも「中目黒」は区を代表するエリアで、東急東横線・東京メトロ日比谷線の中...

more information show less

ご利用の流れ

  • サイト上で気になる物件を検索します。

  • 物件へのお問い合わせは、当社までお気軽にご連絡ください。
    お問い合わせいただいた物件の内見をご希望の場合は、お客様のご都合に合わせて日時を調整いたします。