外観
賃貸
申込みあり
東京メトロ半蔵門線 半蔵門駅 2分

350,000円

2DK,2LDK
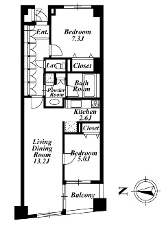
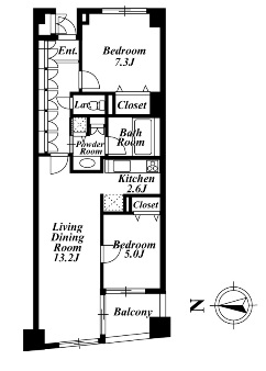
64.69m²
CATV CATV
フローリング フローリング
オートロック オートロック
宅配BOX 宅配BOX
ペット相談 ペット相談
駐車場 駐車場
ビルコード 0095302
物件名 KDXレジデンス半蔵門
部屋番号 204
物件種目 マンション
間取り 2DK,2LDK +1浴室
専有面積 64.69m² (696ft²)
賃料 350,000円
最寄り駅 東京メトロ半蔵門線 半蔵門駅 2分
東京メトロ有楽町線 麹町駅 5分
JR中央本線 四ツ谷駅 13分
所在地 東京都千代田区麹町2-12-1
敷金 2ヶ月
礼金 1ヶ月
管理費 12,000円
更新料 新賃料1ヶ月
仲介手数料 1ヶ月 +税
保証会社 要加入
申込状況 申込みあり
入居可能日 即入居
契約期間 普通借家契約 2年間
保証会社 大手法人契約は相談
階建 13階
構造 鉄骨鉄筋コンクリート(SRC造)
築年月 2003年12月
駐車場 有 45,000円 (inquire availability)
特徴 CATV、フローリング、エアコン、オートロック、宅配BOX、バルコニー、楽器相談、ペット相談、小型ペットのみ可、駐車場
掲載確認日 2026年02月16日
部屋番号 間取り 専有面積 カテゴリー 賃料 敷金 礼金 所在階
204 2DK,2LDK 64.69m² 賃貸 350,000円 2ヶ月 1ヶ月 2階
806 2DK,2LDK 71.74m² 賃貸 398,000円 2ヶ月 なし 8階

Key replacement fee: From 19,800 yen (tax included)

お気に入りに追加

KDXレジデンス半蔵門 204をシェアする

KDXレジデンス半蔵門 204を問い合わせる

03-6271-9991
東京都港区麻布十番2-10-3 / 仲介

閲覧履歴&お気に入り

Now Loading...

地域情報

千代田区は東京23区の中心部に位置し、日本の政治・経済・文化を支える重要な拠点として知られています。丸の内や大手町には国内外の大手企業が集まり、外資系企業のオフィスも多く、来日して...

more information show less

ご利用の流れ

  • サイト上で気になる物件を検索します。

  • 物件へのお問い合わせは、当社までお気軽にご連絡ください。
    お問い合わせいただいた物件の内見をご希望の場合は、お客様のご都合に合わせて日時を調整いたします。