外観

We Will 八丁堀

東京メトロ日比谷線 八丁堀駅 1分

260,000円(10,000円) 〜

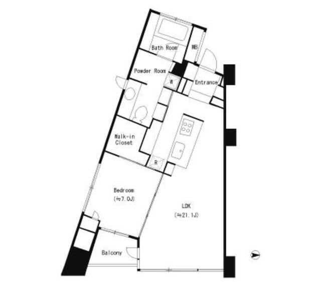
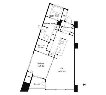
1DK,1LDK
53.6m² 〜 66.03m²
ペット相談 ペット相談
BS端子 BS端子
CS CS
オートロック オートロック
宅配BOX 宅配BOX
駐車場 駐車場
物件種目 マンション
最寄り駅 東京メトロ日比谷線 八丁堀駅 1分
東京メトロ有楽町線 新富町駅 7分
都営浅草線 宝町駅 8分
所在地 東京都中央区八丁堀4-11-2
構造 鉄筋コンクリート(RC造)
階建 14階
築年月 2008年3月
部屋番号 間取り 専有面積 カテゴリー 賃料 敷金 礼金 所在階
1202 1DK,1LDK 66.03m² 賃貸 330,000円 2ヶ月 1ヶ月 12階
602 1DK,1LDK 53.6m² 賃貸 260,000円 2ヶ月 1ヶ月 6階

We Will Hatchobori is built in 2008, located just 1 min from Hatchobori station which could give you access to JR Keiyo Line and Hibiya line, also 7min walk to ShintomiCho station(Yurakucho Line), very convenient location to access Otemachi/Tokyo station area where many large financial companies are located and Roppongi/Azabu area where many large corporation and many embassies are located. We Will Hatchobori offers studio to 2BR units which decorated with modern interiors. Up to 1 small sized dog or cat is accepted to keep, it would be great location to start new life in Tokyo with your cute company. Please contact RISE Corp. for further information and viewing appointments!


【その他費用】

Additional 1 month Deposit for keeping pet/

We Will 八丁堀をシェアする

See History & favorites

Now Loading...

地域情報

東京の中央区は、日本のビジネスと文化の中心地の一つであり、働く外国人にとって非常に利便性が高く魅力的なエリアです。特に「銀座」エリアは高級ブランドショップやレストランが立ち並び、仕...

more information show less

ご利用の流れ

  • サイト上で気になる物件を検索します。

  • 物件へのお問い合わせは、当社までお気軽にご連絡ください。
    お問い合わせいただいた物件の内見をご希望の場合は、お客様のご都合に合わせて日時を調整いたします。