外観
賃貸
東京メトロ有楽町線 辰巳駅 11分

205,000円

1DK,1LDK
83.393m²
フローリング フローリング
床暖房 床暖房
BS端子 BS端子
CATV CATV
CS CS
オートロック オートロック
ビルコード 1390067028
物件名 東雲キャナルコートCODAN19号棟
部屋番号 107
物件種目 マンション
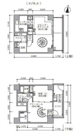
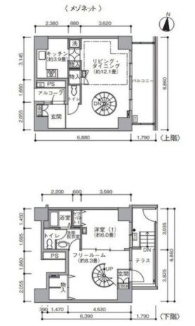
間取り 1DK,1LDK +1浴室 +1スタディー
専有面積 83.393m² (897ft²)
賃料 205,000円
最寄り駅 東京メトロ有楽町線 辰巳駅 11分
りんかい線 東雲駅 14分
ゆりかもめ 豊洲駅 15分
所在地 東京都江東区東雲1-9-19
敷金 2ヶ月
礼金 1ヶ月
管理費 15,000円
更新料 新賃料1ヶ月
仲介手数料 1ヶ月 +税
保証会社 要加入
契約期間 普通借家契約 間
保証会社 大手法人契約は相談
階建 14階
構造 鉄筋コンクリート(RC造)
築年月 2005年3月
特徴 BS端子、CATV、CS、フローリング、床暖房、オートロック
掲載確認日 2026年01月20日
お気に入りに追加

東雲キャナルコートCODAN19号棟 107をシェアする

東雲キャナルコートCODAN19号棟 107を問い合わせる

03-6271-9991
東京都港区麻布十番2-10-3 / 仲介

閲覧履歴&お気に入り

Now Loading...

地域情報

東京都東部に位置する江東区は、日本で働く外国人にとって暮らしやすいエリアのひとつです。 特に湾岸エリアの中心である豊洲は、東京メトロ有楽町線やゆりかもめの豊洲駅を利用でき、銀座や有...

more information show less

ご利用の流れ

  • サイト上で気になる物件を検索します。

  • 物件へのお問い合わせは、当社までお気軽にご連絡ください。
    お問い合わせいただいた物件の内見をご希望の場合は、お客様のご都合に合わせて日時を調整いたします。