Building
Rent
Applicant
Shinjuku Line Jimbocho station 4minutes

187,000yen

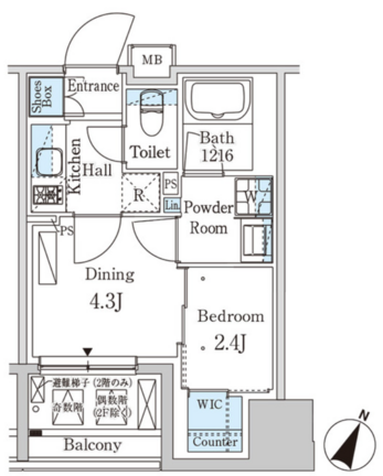
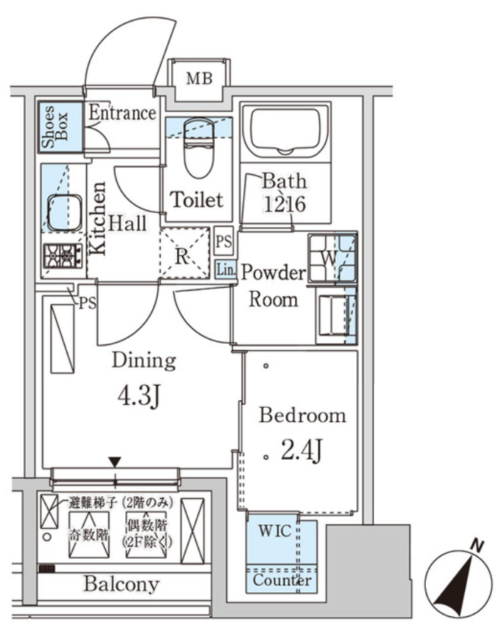
1 Bedroom
25.98m²
Flooring Flooring
Heated floor Heated floor
Pet negotiable Pet negotiable
Parking Parking
BS BS
CATV CATV
CS CS
Auto-lock Auto-lock
Delivery Box Delivery Box
Bicycle-parking Bicycle-parking
Building Code 1390068067
Property Name Park Axis Jimbocho
Room Number 604
Property Type Apartment
Floor Plan 1 Bedroom +1Bath
Floor Area 25.98m² (279ft²)
Rent 187,000yen
Nearest Station Shinjuku Line Jimbocho station 4minutes
Chuo Sobu Line suidobashi station 6minutes
Address 1-56-2 Kandajimbocho, Chiyoda ku, Tokyo
Security Deposit 2months
Key Money 1month
Management Fee Negotiable
Renewal Fee the new rent1month
Agent fee 1month + Tax
Fire insurance Required
Current Status Available
Application Status Applicant
Move-out Date Late Jan 2026
Move-in Date Now
Contract Terms Normal-term lease 2 years
Guarantor Company Mandatory for personal contracts.
Scale 14floor
Structure RC
Year Built Apr, 2024
Parking Available (inquire availability)
Features Flooring、Heated floor、Pet negotiable、Parking、A/C、BS、CATV、CS、Auto-lock、Delivery Box、Bicycle-parking、Motor bike parking、Balcony、Musical instrument
Published Confirmation Date 03/26/2026
Room Number Floor Plan Floor Area Category Rent Security Deposit Key Money Floor
302 2 Bedrooms 52.2m² Rent 322,000yen 2months None 3rd floor
604 1 Bedroom 25.98m² Rent 187,000yen 2months 1month 6th floor

Additional one month Deposit for keeping pet/Bicycle registration fee : from 4,400 yen(tax included)/ Key replacement fee from 46,200yen/

Add to Favorites

Share Park Axis Jimbocho 604

Park Axis Jimbocho 604 Inquiries for K.K. RISE Corp.

+81-3-6271-9991
2-10-3Azabujuban, Minato ku, Tokyo / Mediation

See History & favorites

Search by Ward or Area

Search For Rental Properties By Train Line or Station

Now Loading...

Local Information

Chiyoda City is located at the very center of Tokyo’s 23 wards and is widely known as a ke...

more information show less

Procedure

  • Find your ideal property by simply clicking a station or preference.

  • When inquiring about a property, please contact the real estate agency.
    We will arrange a viewing appointment at your convenience.