Building
Sale
东急东横线 都立大学駅 7分

134,800,000yen

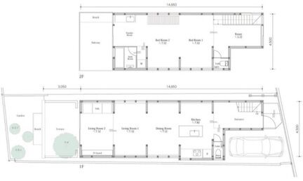
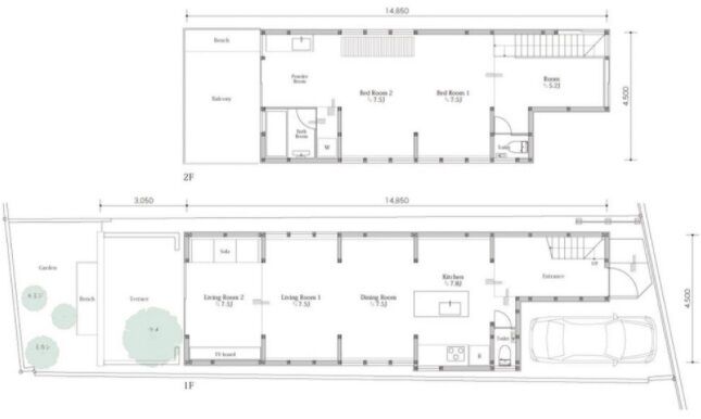
1 Bedroom
110.26m²
BS BS
Internet Internet
Flooring Flooring
Building Code 0067832
Property Name Toritsudaigaki-House
房号 1
分类 House
格局 1 Bedroom +1Bath
面积 110.26m² (1186ft²)
租金 134,800,000yen
最近的车站 东急东横线 都立大学駅 7分
东急目黑线 大岡山駅 15分
东急东横线 都立大学駅 15分
Address 2-13-5 平町, 目黑区, Tokyo
现况 空屋
单位总数 1 units
Site Area 127.06㎡
地段分类 House
用途地域 Category Ⅰ exclusively low-rise residential zone
建筑覆盖率 60.00%
土地权利 所有权
Scale 3階
结构 Wooden
竣工日期 Jul, 1981
Parking Available 1 parkings
Features City gas、BS、Internet、Flooring、Double glazing、Monitor intercom、Dimple key、Wood deck、Renovated、Garden(South)
Published Confirmation Date 06/01/2021
将物件添加到收藏夹

Share Toritsudaigaki-House 1

Toritsudaigaki-House 1 Inquiries for K.K. RISE Corp.

+81-3-6271-9991
2-10-3麻布十番, 港区, Tokyo / Mediation

See History & favorites

按区搜索

按火车线路或车站搜索待售房产

Now Loading...

Procedure

  • Find your ideal property by simply clicking a station or preference.

  • When inquiring about a property, please contact the real estate agency.
    We will arrange a viewing appointment at your convenience.