Building
Sale
JR山手线 目黒駅 バス5分 4分

278,000,000yen

2 Bedrooms
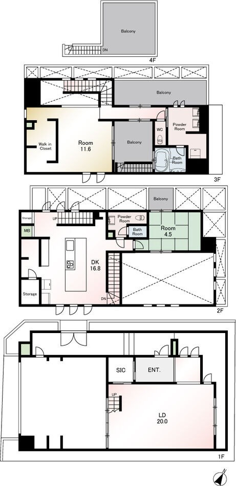
148.77m²
Dishwasher Dishwasher
BS BS
CATV CATV
CS CS
Internet Internet
Flooring Flooring
Heated floor Heated floor
Delivery Box Delivery Box
Pet negotiable Pet negotiable
2 car parkings 2 car parkings
Building Code 0067798
Property Name Shimomeguro 6chome House
房号 1
分类 House
格局 2 Bedrooms +2Bath
面积 148.77m² (1601ft²)
租金 278,000,000yen
最近的车站 JR山手线 目黒駅 バス5分 4分
JR山手线 目黒駅 19分
Address 6-3-13 下目黑, 目黑区, Tokyo
现况 屋主居住中
单位总数 1 units
Site Area 148.77㎡
地段分类 House
城市规划 urbanization promotion area
用途地域 Category Ⅰ exclusively low-rise residential zone
建筑覆盖率 50.00%
土地权利 所有权
建筑公司 三菱地所
Scale 3階
结构 Wooden
竣工日期 Dec, 2017
Parking Include 2 parkings
Features Bathroom Dryer、Counter Kitchen、Water filter、Dishwasher、City gas、WIC、BS、CATV、Fiber optic、CS、Internet、Flooring、Delivery Box、Double glazing、A/C、Heated floor、Monitor intercom、Dimple key、Security camera、Roof Balcony、Wood deck、2 car parkings、Slop sink、Pet negotiable、Garden(South)
Published Confirmation Date 02/09/2026
将物件添加到收藏夹

Share Shimomeguro 6chome House 1

Shimomeguro 6chome House 1 Inquiries for K.K. RISE Corp.

+81-3-6271-9991
2-10-3麻布十番, 港区, Tokyo / Mediation

See History & favorites

按区搜索

按火车线路或车站搜索待售房产

Now Loading...

Procedure

  • Find your ideal property by simply clicking a station or preference.

  • When inquiring about a property, please contact the real estate agency.
    We will arrange a viewing appointment at your convenience.