Rent
Yurikamome Shibaurafutou station 5minutes

268,000yen

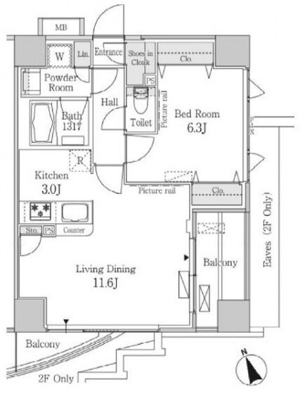
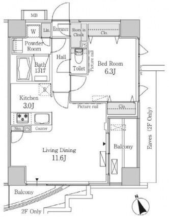
1 Bedroom
50.76m²
CATV CATV
Auto-lock Auto-lock
Delivery Box Delivery Box
Bicycle-parking Bicycle-parking
Building Code 0105307
Property Name Park Flats Shibaura (Tokyo Bay Terrace)
Room Number 1004
Property Type Apartment
Floor Plan 1 Bedroom +1Bath
Floor Area 50.76m² (546ft²)
Rent 268,000yen
Nearest Station Yurikamome Shibaurafutou station 5minutes
Yamanote Line Tamachi station 11minutes
Address 3-2-15 Kaigan, Minato ku, Tokyo
Security Deposit 2months
Key Money 1month
Management Fee 20,000yen
Renewal Fee the new rent1month
Agent fee 1month + Tax
Fire insurance Required
Move-in Date Late May 2026
Contract Terms Normal-term lease 2 years
Guarantor Company Mandatory for personal contracts.
Scale 11floor
Structure RC
Year Built Mar, 2015
Parking None
Features A/C、CATV、Internet、Auto-lock、Delivery Box、Bicycle-parking、No pets、High rise
Published Confirmation Date 04/17/2026
Room Number Floor Plan Floor Area Category Rent Security Deposit Key Money Floor
1004 1 Bedroom 50.76m² Rent 268,000yen 2months 1month 10th floor
904 2 Bedrooms 50.76m² Rent 265,000yen 2months 1month 9th floor

Key replacement fee: from 33,000 yen (tax included)

Add to Favorites

Share Park Flats Shibaura (Tokyo Bay Terrace) 1004

Park Flats Shibaura (Tokyo Bay Terrace) 1004 Inquiries for K.K. RISE Corp.

+81-3-6271-9991
2-10-3Azabujuban, Minato ku, Tokyo / Mediation

See History & favorites

Search by Ward or Area

Search For Rental Properties By Train Line or Station

Now Loading...

Local Information

Minato City: The Epicenter of International Business and Luxury Living Located at the hear...

more information show less

Procedure

  • Find your ideal property by simply clicking a station or preference.

  • When inquiring about a property, please contact the real estate agency.
    We will arrange a viewing appointment at your convenience.