Building
Rent
Applicant
Odawara Line Yoyogihachiman sta. 4minutes

326,000yen

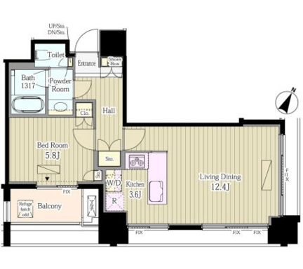
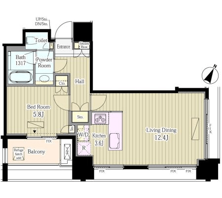
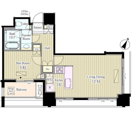
1 Bedroom
50.92m²
Washer Washer
Flooring Flooring
Auto-lock Auto-lock
Delivery Box Delivery Box
Building Code 1390067116
Property Name Tomigaya Springs
Room Number 806
Property Type Apartment
Floor Plan 1 Bedroom +1Bath
Floor Area 50.92m² (548ft²)
Rent 326,000yen
Nearest Station Odawara Line Yoyogihachiman sta. 4minutes
Chiyoda Line Yoyogi-koen sta. 4minutes
Address 1-35-20 Tomigaya, Shibuya ku, Tokyo
Security Deposit 1month
Key Money 1.5months
Management Fee 10,000yen
Renewal Fee the new rent1month
Agent fee 1month + Tax
Fire insurance Required
Application Status Applicant
Move-in Date Late Mar 2026
Contract Terms Normal-term lease 2 years
Guarantor Company Mandatory for personal contracts.
Scale 17floor
Structure RC
Year Built Jan, 2011
Parking None
Features Fiber optic、Internet、Washer、Flooring、A/C、Auto-lock、Delivery Box、Balcony、Musical instrument、No pets
Published Confirmation Date 02/25/2026

Key replacement fee; from 33,000 yen(tax included)

Add to Favorites

Share Tomigaya Springs 806

Tomigaya Springs 806 Inquiries for K.K. RISE Corp.

+81-3-6271-9991
2-10-3Azabujuban, Minato ku, Tokyo / Mediation

See History & favorites

Search by Ward or Area

Search For Rental Properties By Train Line or Station

Now Loading...

Local Information

Shibuya City is one of Tokyo’s most dynamic districts, where youth culture and internation...

more information show less

Procedure

  • Find your ideal property by simply clicking a station or preference.

  • When inquiring about a property, please contact the real estate agency.
    We will arrange a viewing appointment at your convenience.