Building
Rent

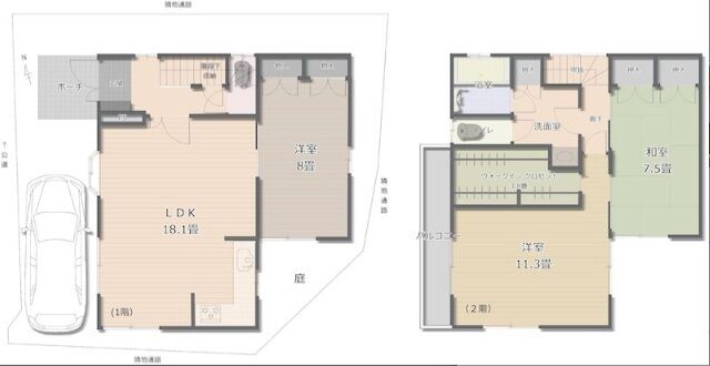
Kasuga House 1st floor〜2nd floor

Namboku Line Korakuen station 10minutes

325,000yen

106.2m²
Pet negotiable Pet negotiable
Parking Parking
CATV CATV
Building Code 1390063911
Property Name Kasuga House
Room Number 1st floor〜2nd floor
Property Type House
Floor Plan +1Bath
Floor Area 106.2m² (1143ft²)
Rent 325,000yen
Nearest Station Namboku Line Korakuen station 10minutes
Oedo Line Kasuga station 10minutes
Marunochi Line Korakuen station 11minutes
Address 2-23-5 Kasuga, Bunkyo ku, Tokyo
Security Deposit 1month
Key Money 1month
Renewal Fee the new rent1month
Agent fee 1month + Tax
Fire insurance Required
Move-in Date Now
Contract Terms Normal-term lease 2 years
Guarantor Company Mandatory for personal contracts.
Scale 2floor
Structure Light steel frame
Year Built Dec, 2000
Parking Available None
Features CATV、A/C、Musical instrument、Pet negotiable、Parking
Published Confirmation Date 12/17/2025
Administration fee when renew the contract from 22,000yen/24h support fee from 16,500yen/Key replacement fee from 33,000yen/Disinfection fee from 22,000yen
Add to Favorites

Share Kasuga House 1st floor〜2nd floor

Kasuga House 1st floor〜2nd floor Inquiries for K.K. RISE Corp.

+81-3-6271-9991
2-10-3Azabujuban, Minato ku, Tokyo / Mediation

See History & favorites

Search by Ward or Area

Search For Rental Properties By Train Line or Station

Now Loading...

Procedure

  • Find your ideal property by simply clicking a station or preference.

  • When inquiring about a property, please contact the real estate agency.
    We will arrange a viewing appointment at your convenience.