Building
Rent
Applicant
Ginza Line Gaienmae sta. 2minutes

163,000yen

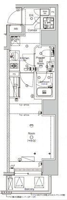
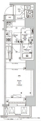
Studio
28.17m²
Flooring Flooring
Pet negotiable Pet negotiable
BS BS
CS CS
Auto-lock Auto-lock
Delivery Box Delivery Box
Building Code 1390067488
Property Name SYFORME GAIEMMAE
Room Number 203
Property Type Apartment
Floor Plan Studio +1Bath
Floor Area 28.17m² (303ft²)
Rent 163,000yen
Nearest Station Ginza Line Gaienmae sta. 2minutes
Address 2 Kitaaoyama, Minato ku, Tokyo
Security Deposit 1month
Key Money 1month
Management Fee 10,000yen
Agent fee 1month + Tax
Fire insurance Required
Application Status Applicant
Move-in Date Early Apr 2026
Contract Terms Fixed-term lease 2 years
Guarantor Company Mandatory for personal contracts.
Scale 10floor
Structure RC
Year Built 2017
Features BS、CS、Internet、Flooring、A/C、Auto-lock、Delivery Box、Balcony、Pet negotiable、Small pets only
Published Confirmation Date 02/19/2026

Key replacement fee: from 33,000 yen/Additional one month Deposit for keeping pet

Add to Favorites

Share SYFORME GAIEMMAE 203

SYFORME GAIEMMAE 203 Inquiries for K.K. RISE Corp.

+81-3-6271-9991
2-10-3Azabujuban, Minato ku, Tokyo / Mediation

See History & favorites

Search by Ward or Area

Search For Rental Properties By Train Line or Station

Now Loading...

Local Information

Minato City: The Epicenter of International Business and Luxury Living Located at the hear...

more information show less

Procedure

  • Find your ideal property by simply clicking a station or preference.

  • When inquiring about a property, please contact the real estate agency.
    We will arrange a viewing appointment at your convenience.