Rent

Shoto House1 (Shoto1-6-2) 1st floor〜2nd floor

Yamanote Line Shibuya sta. 10minutes

2,000,000yen

4 Bedrooms
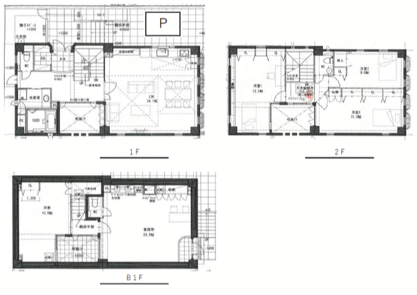
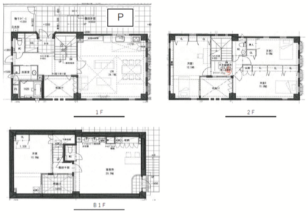
214.21m²
Flooring Flooring
Building Code 1390067586
Property Name Shoto House1 (Shoto1-6-2)
Room Number 1st floor〜2nd floor
Property Type House
Floor Plan 4 Bedrooms +1Bath
Floor Area 214.21m² (2305ft²)
Rent 2,000,000yen
Nearest Station Yamanote Line Shibuya sta. 10minutes
Address 1-6-2 Shoto, Shibuya ku, Tokyo
Security Deposit 3months
Key Money 1month
Agent fee 1month + Tax
Fire insurance Required
Move-in Date To be confirmed
Contract Terms Fixed-term lease 3 years
Guarantor Company Mandatory for personal contracts.
Scale 2floor / Base1floor
Structure RC
Year Built Feb, 2013
Parking Include 1 parking
Features Flooring
Published Confirmation Date 03/02/2026

This is unfurnished/ All ACs are not part of facilities/ 1 month deposit will not be returned when moving out/

Add to Favorites

Share Shoto House1 (Shoto1-6-2) 1st floor〜2nd floor

Shoto House1 (Shoto1-6-2) 1st floor〜2nd floor Inquiries for K.K. RISE Corp.

+81-3-6271-9991
2-10-3Azabujuban, Minato ku, Tokyo / Mediation

See History & favorites

Search by Ward or Area

Search For Rental Properties By Train Line or Station

Now Loading...

Local Information

Shibuya City is one of Tokyo’s most dynamic districts, where youth culture and internation...

more information show less

Procedure

  • Find your ideal property by simply clicking a station or preference.

  • When inquiring about a property, please contact the real estate agency.
    We will arrange a viewing appointment at your convenience.