Building
Rent
Yamanote Line Osaki station 11minutes

1,030,000yen

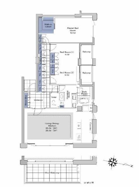
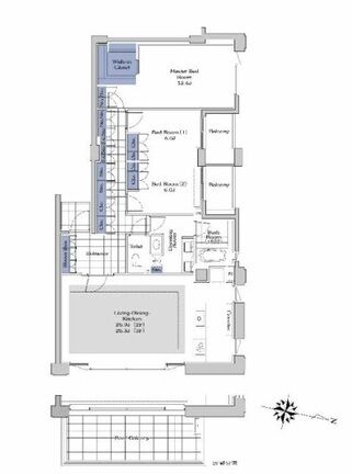
3 Bedrooms
126.77m²
Flooring Flooring
Heated floor Heated floor
Pet negotiable Pet negotiable
Parking Parking
Front Desk Front Desk
Dishwasher Dishwasher
Washer Washer
Dryer Dryer
Auto-lock Auto-lock
Delivery Box Delivery Box
Bicycle-parking Bicycle-parking
Building Code 1390062695
Property Name Prime Maison Gotenyama West
Room Number 209
Property Type Apartment
Floor Plan 3 Bedrooms +1Bath
Floor Area 126.77m² (1364ft²)
Rent 1,030,000yen
Nearest Station Yamanote Line Osaki station 11minutes
Yamanote Line Shinagawa station 12minutes
Yamanote Line Gotanda station 13minutes
Address 6-5-8 Kitashinagawa, Shinagawa ku, Tokyo
Security Deposit 3months
Key Money 1month
Agent fee 1month + Tax
Fire insurance Required
Move-in Date Now
Contract Terms Fixed-term lease 3 years
Guarantor Company Mandatory for personal contracts.
Scale 4floor
Structure RC
Year Built Jan, 2011
Features Dishwasher、Washer、Dryer、Flooring、A/C、Heated floor、Auto-lock、Home security system、Front Desk、Delivery Box、Balcony、Musical instrument、Pet negotiable、Small dog only、Parking、Bicycle-parking
Published Confirmation Date 05/14/2026
Add to Favorites

Share Prime Maison Gotenyama West 209

Prime Maison Gotenyama West 209 Inquiries for K.K. RISE Corp.

+81-3-6271-9991
2-10-3Azabujuban, Minato ku, Tokyo / Mediation

See History & favorites

Search by Ward or Area

Search For Rental Properties By Train Line or Station

Now Loading...

Local Information

Shinagawa City, located in the southern part of Tokyo, is a popular area among foreign res...

more information show less

Procedure

  • Find your ideal property by simply clicking a station or preference.

  • When inquiring about a property, please contact the real estate agency.
    We will arrange a viewing appointment at your convenience.