Building
Rent
Applicant
Meguro Line Meguro station 2minutes

585,000yen

2 Bedrooms
68.2m²
Pet negotiable Pet negotiable
Parking Parking
Front Desk Front Desk
Auto-lock Auto-lock
Bicycle-parking Bicycle-parking
Building Code 0076714
Property Name Meguro Daiichi Mansions
Room Number 910
Property Type Apartment
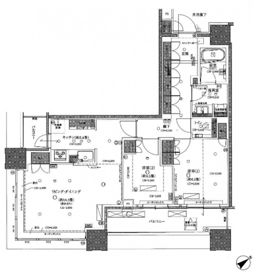
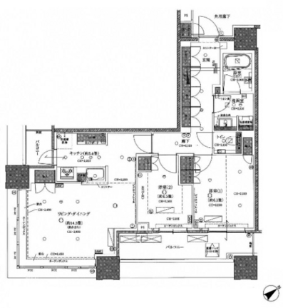
Floor Plan 2 Bedrooms +1Bath
Floor Area 68.2m² (734ft²)
Rent 585,000yen
Nearest Station Meguro Line Meguro station 2minutes
Namboku Line Meguro station 2minutes
Yamanote Line Meguro station 2minutes
Address 3-1-2 Kamiosaki, Shinagawa ku, Tokyo
Security Deposit 2months
Key Money 0.5months
Management Fee 12,000yen
Agent fee 1month + Tax
Fire insurance Required
Current Status Available
Application Status Applicant
Move-in Date Now
Contract Terms Fixed-term lease 2 years
Guarantor Company Mandatory for personal contracts.
Scale 40floor
Structure RC
Year Built Nov, 2017
Parking Available 41,000yen (inquire availability)
Features Pet negotiable、Parking、Front Desk、A/C、Internet、Auto-lock、Home security system、Bicycle-parking、Small pets only
Published Confirmation Date 05/08/2026
Room Number Floor Plan Floor Area Category Rent Security Deposit Key Money Floor
1008 1 Bedroom 44.9m² Rent 372,000yen 2months 1month 10th floor
910 2 Bedrooms 68.2m² Rent 585,000yen 2months 0.5months 9th floor
1102 1 Bedroom 46.5m² Rent 377,000yen 2months 1month 11th floor
1302 2 Bedrooms 62.1m² Rent 534,000yen 2months None 13th floor
804 Studio 32.1m² Rent 222,000yen 2months 1month 8th floor
1109 2 Bedrooms 68.2m² Rent 638,000yen 2months 1month 11th floor
Add to Favorites

Share Meguro Daiichi Mansions 910

Meguro Daiichi Mansions 910 Inquiries for K.K. RISE Corp.

+81-3-6271-9991
2-10-3Azabujuban, Minato ku, Tokyo / Mediation

See History & favorites

Search by Ward or Area

Search For Rental Properties By Train Line or Station

Now Loading...

Local Information

Shinagawa City, located in the southern part of Tokyo, is a popular area among foreign res...

more information show less

Procedure

  • Find your ideal property by simply clicking a station or preference.

  • When inquiring about a property, please contact the real estate agency.
    We will arrange a viewing appointment at your convenience.