Building
Rent
Hibiya Line Roppongi sta. 5minutes

590,000yen

1 Bedroom
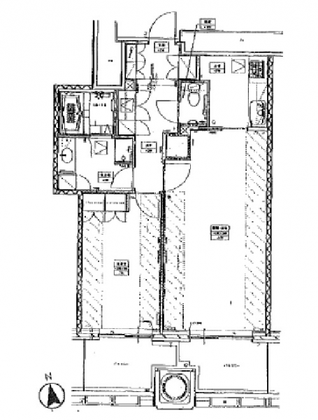
65.29m²
Flooring Flooring
Auto-lock Auto-lock
Front Desk Front Desk
Parking Parking
Building Code 0074602
Property Name Roppongi Hills Residence B(Individual Owner)
Room Number 2206
Property Type Apartment
Floor Plan 1 Bedroom +1Bath
Floor Area 65.29m² (702ft²)
Rent 590,000yen
Nearest Station Hibiya Line Roppongi sta. 5minutes
Namboku Line Azabujuban sta. 6minutes
Address 6-12-2 Roppongi, Minato ku, Tokyo
Security Deposit 2months
Key Money 1month
Renewal Fee the new rentNone
Agent fee 1month + Tax
Fire insurance Required
Current Status Available
Move-in Date To be confirmed
Contract Terms Fixed-term lease 3 years
Guarantor Company Mandatory for personal contracts.
Scale 43floor
Structure CFT
Year Built Apr, 2003
Parking Available 55,000yen - 65,000yen (inquire availability)
Features Flooring、A/C、Auto-lock、Front Desk、Balcony、No pets、Parking、High rise
Published Confirmation Date 03/04/2026
Room Number Floor Plan Floor Area Category Rent Security Deposit Key Money Floor
2503 1 Bedroom 64.56m² Rent 560,000yen 2months 1month 25th floor
2206 1 Bedroom 65.29m² Rent 590,000yen 2months 1month 22nd floor
2403 1 Bedroom 64.56m² Rent 480,000yen 2months 1month 24th floor
Add to Favorites

Share Roppongi Hills Residence B(Individual Owner) 2206

Roppongi Hills Residence B(Individual Owner) 2206 Inquiries for K.K. RISE Corp.

+81-3-6271-9991
2-10-3Azabujuban, Minato ku, Tokyo / Mediation

See History & favorites

Search by Ward or Area

Search For Rental Properties By Train Line or Station

Now Loading...

Local Information

Minato City: The Epicenter of International Business and Luxury Living Located at the hear...

more information show less

Procedure

  • Find your ideal property by simply clicking a station or preference.

  • When inquiring about a property, please contact the real estate agency.
    We will arrange a viewing appointment at your convenience.